İçindekiler
Komple Mutfak Ekipmanları Üretimi – İmalatı
Toplu yemek pişirilen mutfaklara endüstriyel mutfak denir. Yemekhane, lokanta, restoran gibi mutfaklar endüstriyel mutfağa en büyük örneklerdir. Firmamız böyle mutfakların paslanmaz malzeme ihtiyaçlarını karşılamaktadır. İmalatını yaptığımız ürün grupları şöyledir :
- Hazırlık ekipmanları (tezgah, istif rafı vs.)
- Pişirme ekipmanları (ocak, fırın vs.)
- Bulaşıkhane tezgah ve eviyeleri (eviye vs.)
- Paslanmaz arabalar (malzeme arabası vs.)
Firmamız birçok mutfak ekipmanını üretmektedir. Bu üretimde 304 kalite paslanmaz çelik(krom) hammadde kullanmaktadır. Müşterilerimizin isteğine ve ihtiyaçlarına göre özel üretim yapmaktayız. Ayrıca standart olarak çeşitli ölçülerde tezgah, ocak gibi ürünleri de imal etmekteyiz.
Yemekhane Mutfak Projesi
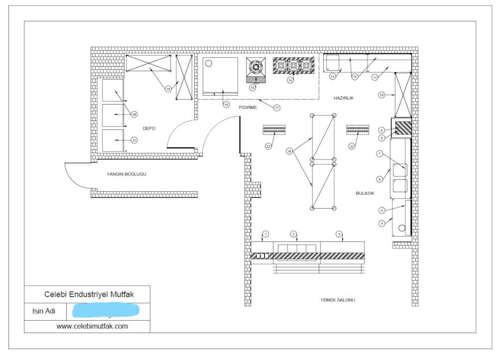
Yemekhaneler, özel ekipmanlara ihtiyaç duyarlar. Bir yemekhane kurmak için inşaat aşamasından itibaren titiz çalışma yapılması gerekir. Bu çalışma inşaat halinden başlayarak üretim tesisi faaliyete geçene kadar devam etmelidir.
Kurulacak olan yemekhane günlük kaç kişiye yemek üretimi yapacaksa ona göre planlama yapılmalıdır. Bir restoran mutfağı, yemekhane mutfağı ile tamamen farklıdır. Veya yerinde üretim mutfağı ile merkezi yemekhane mutfağı da farklılıklar gösterir.
Yemekhane Mutfak Ekipmanları
Yemekhanelerde çeşitli mutfak ekipmanları kullanılmaktadır. Paslanmaz ekipmanları bunların başında gelmektedir.
Hazırlık Ekipmanları

Yemek üretimine önce buradan başlanır. Sebze ve et hazırlıkları yapılır. Bu bölümde tezgahlar ve eviyeler bulunur. Yemek malzemelerini yıkamak için eviyeli lavabolar bulunmalıdır. Ayrıca kesme doğrama işleri için düz tezgahlar bulunur. Malzeme depolamak için de dolaplı tezgahlar ve duvar dolapları bulunmalıdır.
Pişirme Ekipmanları

Yemekhane inşa edilirken dikkat edilmesi gereken en önemli bölüm pişirme bölümüdür. Bu bölümde havalandırma, gaz ve su tesisatı olacağı için daha sonradan değişiklik yapılması oldukça güçtür. Bu sebeple üretim sayısının planlaması ve buna göre tesisat çekilmesi gerekir.
Firmamız pişirme bölümü için; yer ocağı, davlumbaz, pasta börek fırını üretmektedir.
Bulaşık Ekipmanları

Tabak, çatak gibi küçük bulaşıklar, makineler tarafından yıkanmaktadır. Fakat büyük kazanlar ve yemek küvetleri elde yıkanır. Bulaşıkhane planlaması da buna göre yapılmalıdır.
Bulaşıkhaneye gelen kirli malzemelerin pislikleri, çöp sıyırma tezgahında ayıklanır. Daha sonra bulaşık makinesi giriş tezgahında ön yıkama yapılarak makineye koyulur. Makineden çıkan malzemeler çıkış tezgahına alınır daha sonra istif raflarında durulamaya bırakılır. Burada dikkat edilmesi gereken husus, çöp sıyırmadan bulaşık makinesi çıkış eviyesine kadar olan süreç, iyi dizayn edilmelidir. Eğer yeterli imkan varsa bu işlemdeki tezgah ve makineler sırası ile yan yana konumlandırılmalıdır.

Bu projenin sağ kısmında bulunan Bulaşık bölümündeki tezgah dizilimleri sırası ile yapılmıştır : Sıyırma Tezgahı > Makine Giriş Eviyesi > Makine > İstif rafı şeklinde sıralanmıştır.
Servis Ekipmanları(Benmariler)

Yemek salonlarında yemek dağıtımı yapmak için benmari yemek ısıtıcı tezgahlar kullanılır. Bu tezgahlar yemeklerin sıcak tutulmasını sağlar. Sulu sistem ısıtma yapılır.
Depolama ve İstifleme

Yemekhanelerde soğuk oda ve erzak depolarında istif rafları kullanılır. Ayrıca depolama için dolap ve duvar rafları da tercih edilebilir.
İletişim
Adres : Duaçınarı Mh. Orta Sk. No:5 Yıldırım/BURSA
Tel & Fax : 0224 361 38 99
E-posta : info@celebimutfak.com
